100) ? false : true; navIsShown = (window.pageYOffset > heroHeight) ? true : false; triggerTransitions = window.pageYOffset > (heroHeight / 2) ? true : false; if (navIsOpen && !atTop && !navIsShown) navIsOpen = false; ">
Toggle Navigation
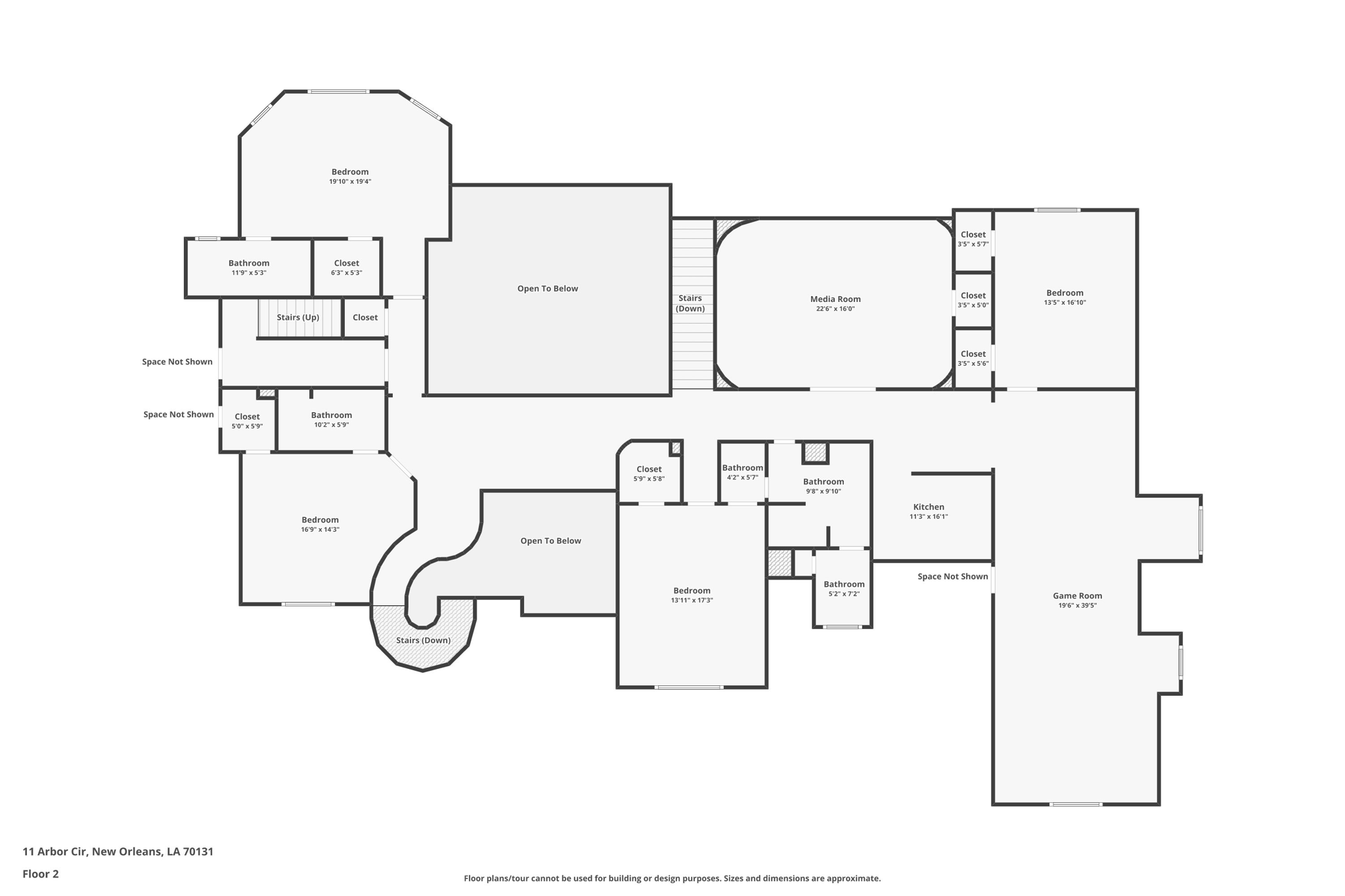
11 Arbor Cir, New Orleans, LA 70131
Images
Floor Plans
3D Tour
Map
View Gallery
3D Tour
Slideshow
Photo Grid
Hide
Previous
Next
11 Arbor Cir
New Orleans, LA 70131
Images
Show more
Slideshow
Photo Grid
Hide
Previous
Next
Floor Plans
Slideshow
Photo Grid
Hide
Previous
Next
3D Tour